Lapáky tuků
Gravitační lapáky tuků
Použití
Gravitační lapák tuku je zařízení sloužící k odstraňování tuků z odpadních vod. Lze jej použít jako předřazené zařízení před ČOV nebo samostatně před zaústěním odpadních vod s obsahem tuku (odpadní voda z masných provozů, z kuchyní restaurací apod.) do kanalizace.
Proces
V gravitačním lapáku tuků dochází k oddělení pouze na základě fyzikálních vlastností tuků (menší hustota než hustota vody). Odpadní voda natéká do lapáku tuků, kde dochází k ochlazení a vlivem rozdílné hustoty tuku k vyflotování částeček tuku na hladinu. Oddělený plovoucí tuk je sbírán ručně.
Popis provedení
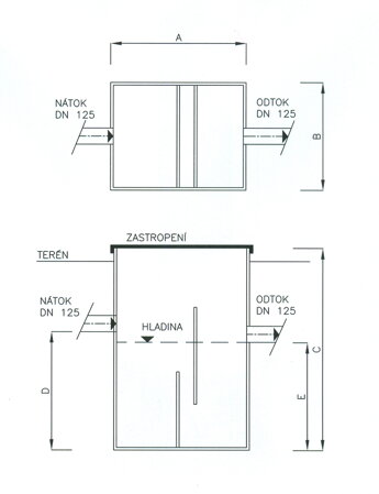
Gravitační lapák tuků je plastová nádrž opatřená vnitřní vestavbou (plastové příčky).
Konstrukční výkres
Tabulka základních hodnot
| Označení |
Kapacita |
Rozměry A x B x C |
Výška nátoku D |
Výška odtoku E |
Akumulace tuku |
Potrubí |
| l/s | m | m | m | mm | ||
| LT 2 | 2 | 1x0,8x1,5 | 0,9 | 0,8 | ne | 125 |
| LT 3 | 3 | 1,25x1x1,5 | 0,9 | 0,8 | ne | 125 |
| LT 4 | 4 | 2x1,16x1,58 | 1,18 | 1,08 | ne | 125 |
| LT 4-A | 4 | 2x1,66x1,58 | 1,18 | 1,08 | ano | 125 |
Výhody
Odstraněním tuků z odpadní vody se výrazně snižuje látkové zatížení odpadní vody, která natéká na čistírnu odpadní vody. To umožňuje snížení objemu aktivačních nádrží čistírny, menší nároky na obsluhu, menší produkce přebytečného kalu apod.
Gravitační lapák tuků zaručuje vysokou spolehlivost provozu, prakticky nulové provozní náklady a velmi jednoduchou obsluhu při uspokojivé účinnosti zařízení.
